Luxury New Build Semi-Detached Villas in Benijófar – Costa Blanca Living
Privileged Location in Benijófar
These exclusive new build semi-detached villas are located in the charming town of Benijófar, one of the most sought-after areas on the Costa Blanca. Known for its mix of tradition and modern lifestyle, Benijófar offers all essential services including supermarkets, pharmacies, banks, restaurants, and local shops. The development is strategically positioned just 10 km from the golden beaches of Guardamar del Segura and only 30 km from Alicante Airport, making it an ideal location for both permanent living and holiday stays.
Spacious and Modern Design
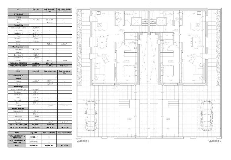
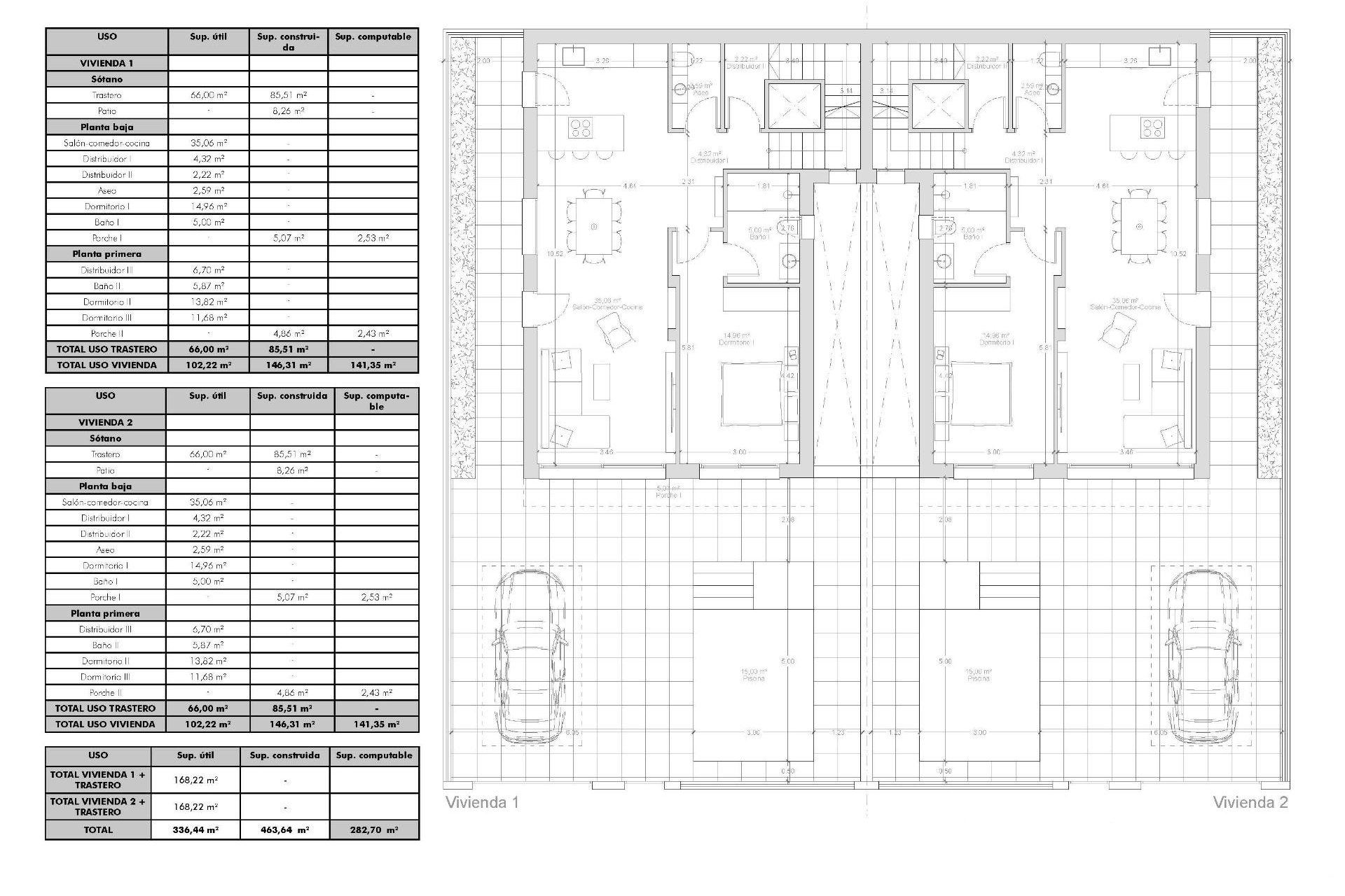
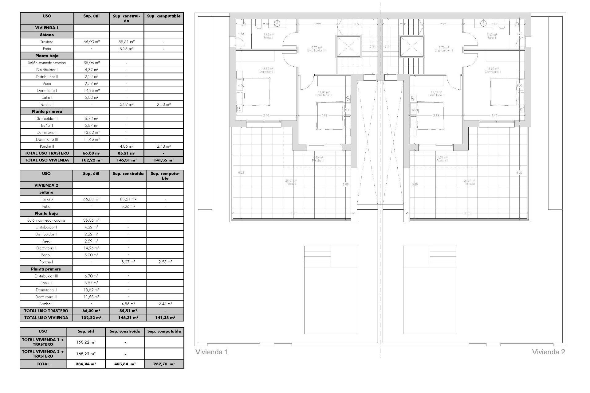
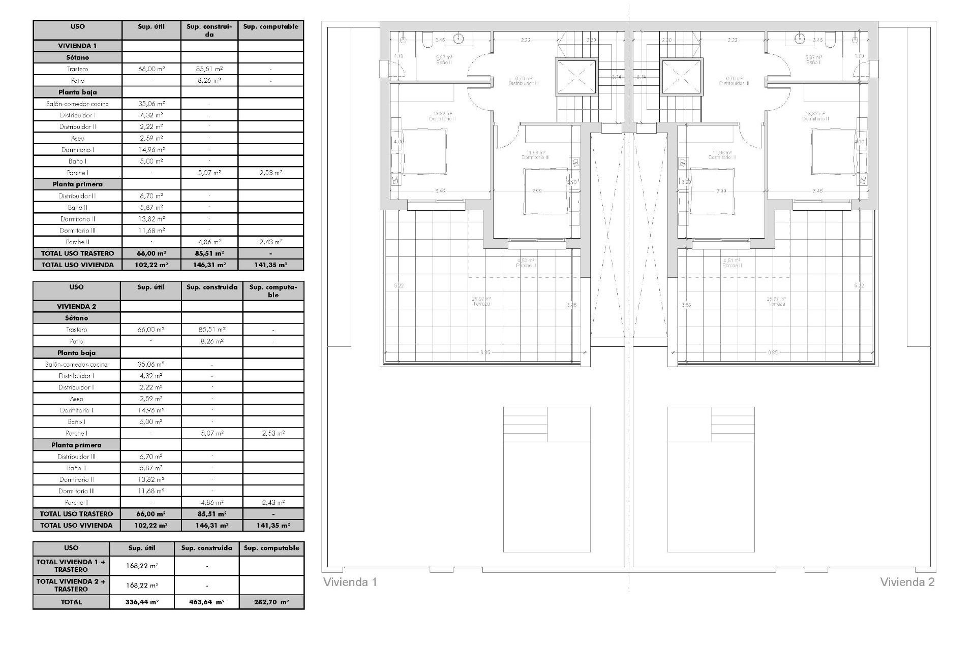
Each villa has been designed with a contemporary style, maximizing space and natural light. The distribution includes three bedrooms (one on the ground floor and two on the first floor) and three bathrooms (including one in the basement), making them perfect for families and guests. The open-plan living room with dining area flows seamlessly into the fully fitted kitchen, creating a warm and functional environment. Large windows enhance brightness throughout the home.
Premium Features and Extras
These villas stand out for their high-quality finishes and thoughtful details:
66 m2 basement with bathroom, gallery and laundry area
Private pool, solarium with barbecue and sink
Decorative fireplace in the living room
Private parking within the plot
Elevator from basement to top floor
3 photovoltaic solar panels and LED lighting throughout
Pre-installed air conditioning
Fully fitted bathrooms with furniture and shower screens
Plot sizes from 200 m2
Lifestyle and Surroundings
Benijófar combines the charm of a traditional Spanish village with the convenience of modern services. Nature lovers will enjoy the nearby natural park, perfect for walking and cycling. For golf enthusiasts, La Marquesa Golf is just 5 km away, while several other top courses are within a 15 km radius. Families can visit the waterparks in Rojales (4 km) and Torrevieja (12 km), or explore the vibrant city of Torrevieja itself, only 12 km away.
Excellent Connectivity
The villas benefit from easy access to the N-332 and AP-7 motorways, ensuring quick connections to Alicante, Elche, Orihuela Costa, and Murcia. The area offers the perfect balance of tranquility, amenities, and accessibility.
Your Dream Home in Costa Blanca
Experience luxury, comfort, and Mediterranean living in these stunning new build villas in Benijófar. Contact us today for more details and to arrange a viewing of your future home.