New Build Semi-Detached Villas with Private Pool in La Finca Golf Resort, Algorfa
Exclusive Mediterranean Living in La Finca Golf
Discover this exceptional new residential development located within the prestigious La Finca Golf Resort in Algorfa, Costa Blanca South. You can choose between 2/3 bedroom apartments with comunal pool or semi-detached or detached villas with private pools. Surrounded by lush fairways and natural landscapes, this community offers an idyllic lifestyle in a peaceful and secure environment.
The charming town of Algorfa is known for its traditional Spanish character, excellent gastronomy and relaxed atmosphere, making it an ideal destination for both holiday homes and permanent living.
Modern Semi-Detached Villas with Private Pool
These beautifully designed semi-detached villas feature 3 bedrooms and 2 bathrooms, combining functionality, comfort and modern style.
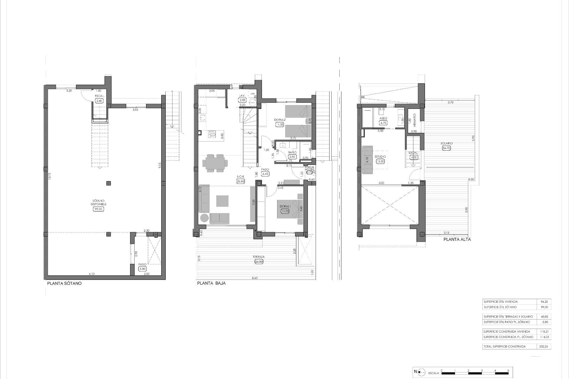
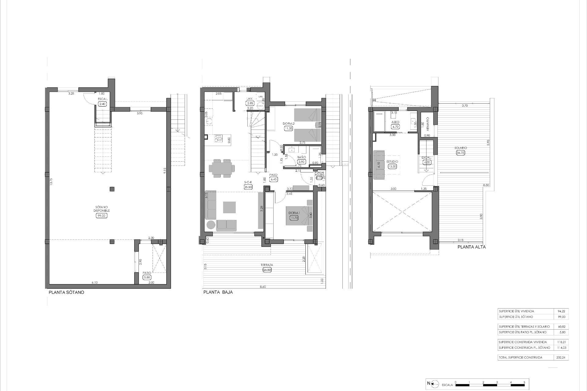
Layout details
Ground floor
Bright open plan living and dining room connected to a furnished kitchen
Large sliding doors providing direct access to the garden and private swimming pool
Two spacious bedrooms with built in wardrobes
One full bathroom
Private parking within the plot
Upper floor
Studio space with a bathroom ideal for office, lounge or guest area
Access to a 30 m2 private open terrace, perfect for sunbathing and relaxing
High Quality Features and Finishes
Built to premium standards, these villas offer contemporary comforts for year round living, including
Built in wardrobes in all bedrooms
Electric shutters in living room and bedrooms
Fully equipped bathrooms with mirrors and shower screens
Ducted air conditioning fully installed
Private garden and pool
Prime Location Close to Beaches, Golf and Services
La Finca Golf Resort is one of the most renowned golf destinations on the Costa Blanca, offering a wide range of services such as a luxury hotel, restaurants, spa and sports facilities. The development enjoys quick access to nearby towns, beaches and airports, providing convenience and connectivity.
Distances to key points
La Finca Golf Club: walking distance
Beaches of Guardamar del Segura: 15 km
Torrevieja and Orihuela Costa: 15 km
Almoradí, Benijófar and Ciudad Quesada: short drive
Alicante Airport: 35 km
Enjoy the Best of Costa Blanca Living
With modern design, private outdoor spaces and a privileged location, these villas are an excellent choice for families, investors and golf lovers seeking a quality lifestyle in the south of Spain. Contact us today to arrange a visit or receive more information about this exclusive new build development in La Finca Golf Resort, Algorfa.