Los Balcones / Alicante Bungalow / New Build

259.000
REF: CB-98326

Overview

REF: CB-98326
259.000

Los Balcones / Alicante Bungalow / New Build

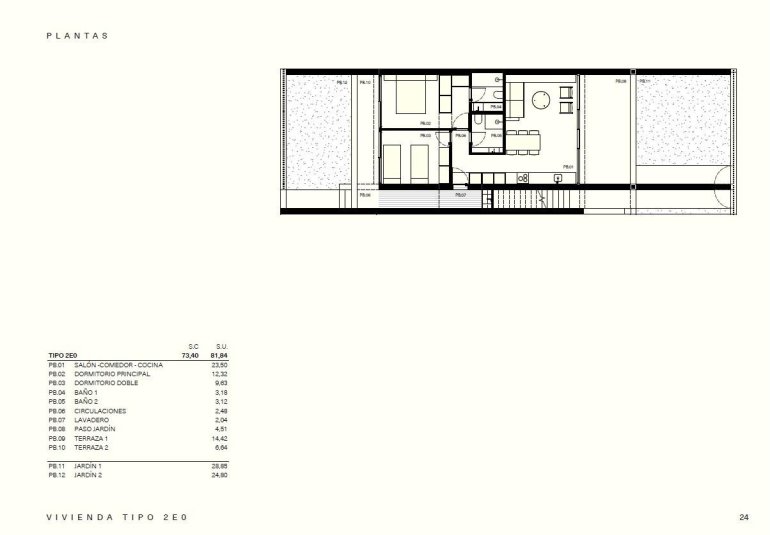
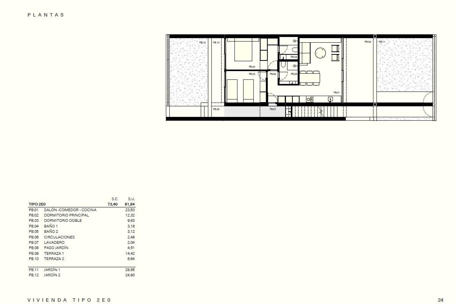
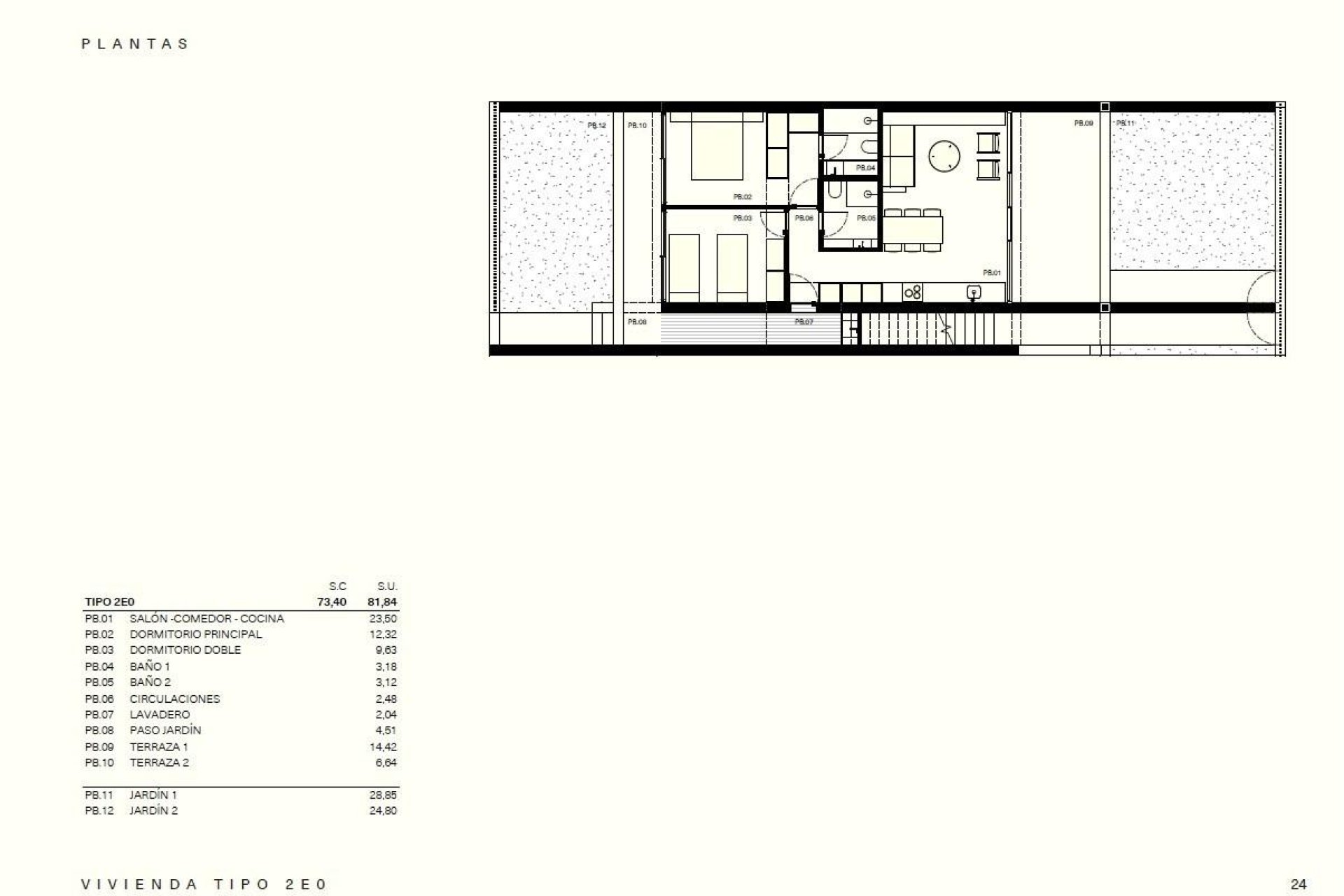
  • Meters 81m2
  • Plot 53m2
  • Bedrooms 2
  • Bathrooms 2
REF: CB-98326

Description

Los Balcones / Alicante Bungalow / New Build

Location

Make an enquiry

Get in touch with Maleo Sun

Data Controller: Maleo Sun Properties, Purpose of Processing: Management and control of the services offered through the Real Estate Services website, Sending information via newsletter and others, Legal Basis: By consent, Recipients: Data will not be shared, except for accounting purposes, Rights of Interested Parties: Access, rectify, and delete data, request its portability, object to processing, and request its limitation, Source of Data: The Data Subject, Additional Information: You can consult additional and detailed information on data protection Here.
Search properties
Mail Let’s talk!
WhatsApp Let’s talk!