Los Balcones / Alicante Bungalow / Obra Nueva

259.000
REF: CB-98326

Vista general

REF: CB-98326
259.000

Los Balcones / Alicante Bungalow / Obra Nueva

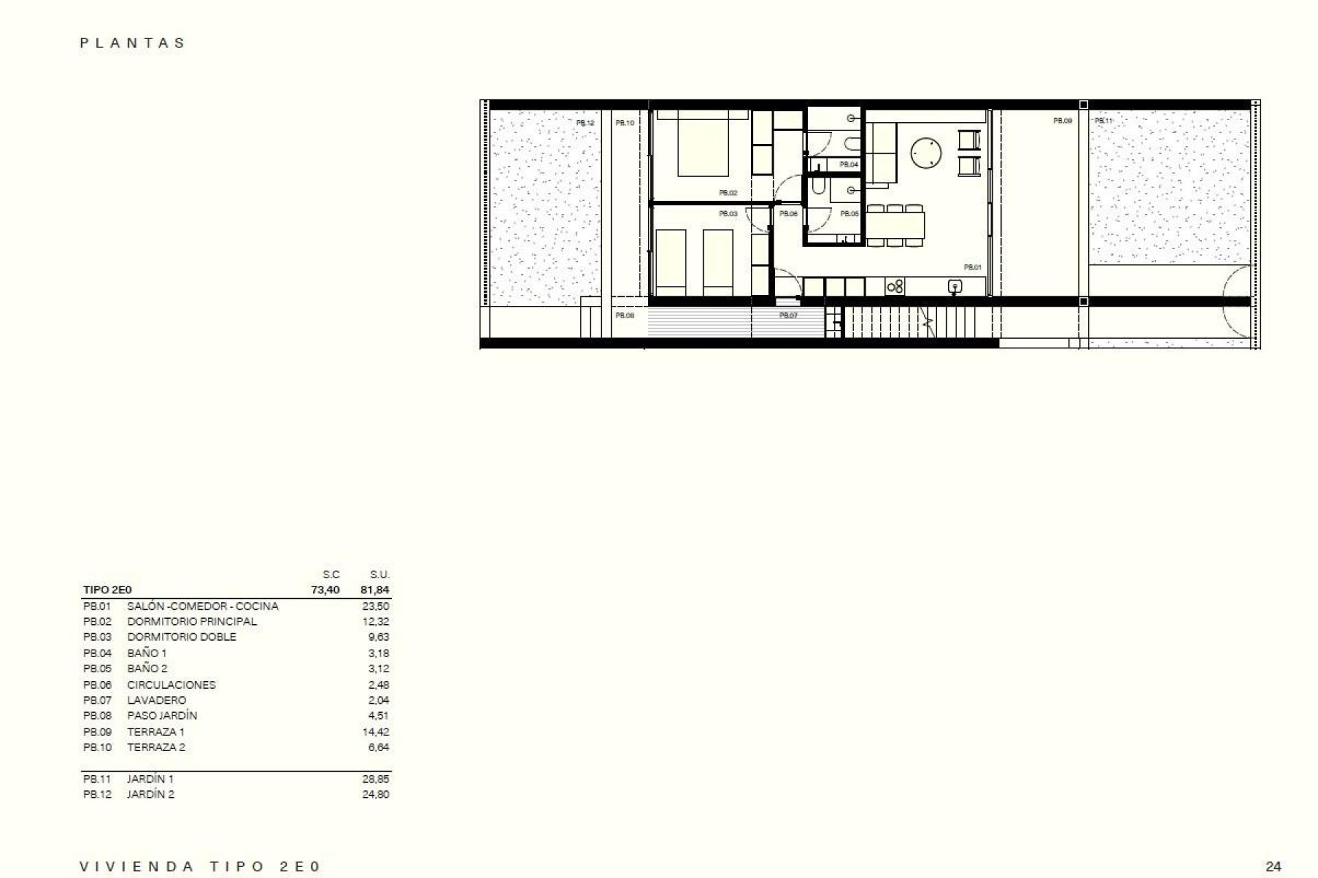
  • Metros 81m2
  • Parcela 53m2
  • Habitaciones 2
  • Baños 2
REF: CB-98326

Descripción

Los Balcones / Alicante Bungalow / Obra Nueva

Localización

Realizar una consulta

Ponte en contacto con Maleo Sun

Responsable del tratamiento: Maleo Sun Properties, Finalidad del tratamiento: Gestión y control de los servicios ofrecidos a través de la página Web de Servicios inmobiliarios, Envío de información a traves de newsletter y otros, Legitimación: Por consentimiento, Destinatarios: No se cederan los datos, salvo para elaborar contabilidad, Derechos de las personas interesadas: Acceder, rectificar y suprimir los datos, solicitar la portabilidad de los mismos, oponerse altratamiento y solicitar la limitación de éste, Procedencia de los datos: El Propio interesado, Información Adicional: Puede consultarse la información adicional y detallada sobre protección de datos Aquí.
Buscar propiedades
Mail ¡Hablemos!
WhatsApp ¡Hablemos!