Ekskluzywne śródziemnomorskie życie w Lo Marabú, Ciudad Quesada
Doskonała lokalizacja z naturą i wygodą
Odkryj urok życia w Lo Marabú, Ciudad Quesada, ekskluzywnej dzielnicy mieszkalnej, która łączy nowoczesny komfort z pięknem śródziemnomorskiej przyrody. Położone w doskonałej lokalizacji osiedle oferuje łatwy dostęp do podstawowych usług, zapewniając jednocześnie spokojne i ciche otoczenie. W odległości krótkiej przejażdżki samochodem znajdują się wspaniałe słone laguny La Mata i Torrevieja, raj dla entuzjastów przyrody, fotografów i osób poszukujących dobrego samopoczucia.
Piękne plaże i zajęcia na świeżym powietrzu
Oddalone o zaledwie 15 minut jazdy samochodem, dziewicze plaże Guardamar del Segura i Torrevieja zapraszają do podziwiania złotych wydm i krystalicznie czystej wody. Te nadmorskie perełki oferują możliwość relaksu, uprawiania sportów wodnych i malowniczych spacerów wzdłuż brzegu. Dla entuzjastów spędzania czasu na świeżym powietrzu okolica oferuje liczne szlaki piesze i rowerowe, a miłośnicy golfa docenią bliskość kilku prestiżowych pól golfowych, zapewniających pierwszorzędne wrażenia sportowe.
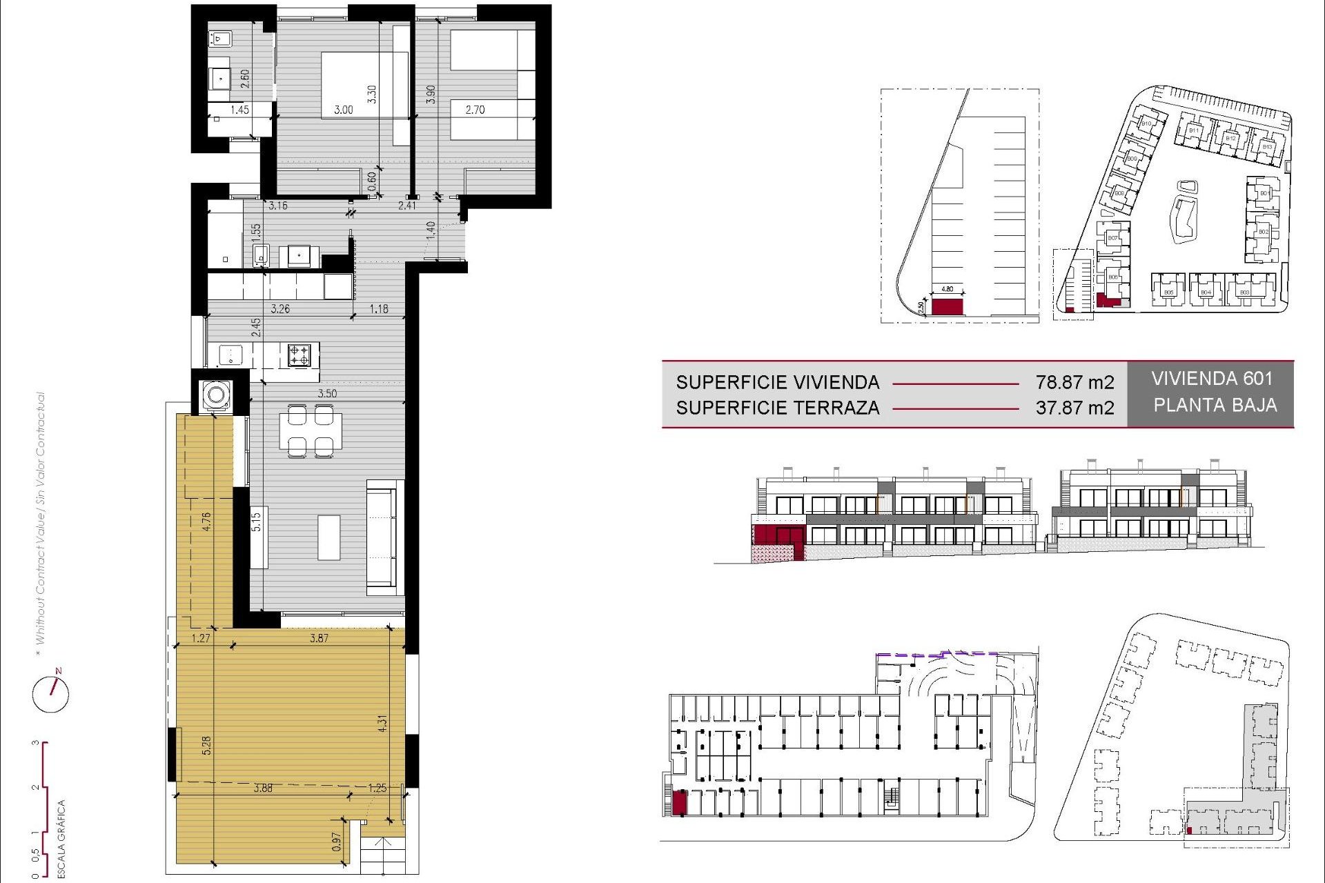
Wysokiej jakości domy i udogodnienia
Ten kompleks mieszkaniowy obejmuje starannie zaprojektowane domy, w tym
Bungalowy: Jednostki na parterze z prywatnymi ogrodami lub opcje na najwyższym piętrze z solarium. Wszystkie bungalowy obejmują dwie sypialnie, dwie łazienki, miejsce parkingowe i pomieszczenie gospodarcze, położone wokół centralnego obszaru wspólnego z basenem i ogrodami krajobrazowymi.
Wille: Niezależne nieruchomości z trzema sypialniami i trzema łazienkami, dostępne w układzie jedno- lub dwupiętrowym. Każda willa obejmuje prywatny basen, solarium i parking na terenie działki. Dostępne są również opcjonalne piwnice.
Nowoczesny komfort i wyjątkowe funkcje
Każdy dom jest zbudowany z najwyższej jakości materiałów i wykończeń:
Okna PCV z podwójnymi szybami i zdalnie sterowanymi roletami z napędem silnikowym.
Elektryczne ogrzewanie podłogowe w łazienkach.
Klimatyzacja kanałowa.
Wille z prywatnymi basenami (3,00 x 6,00 m) i prysznicami ze stali nierdzewnej.
Wspólne baseny z częścią dla dzieci dla mieszkańców bungalowów.
W ramach specjalnej oferty premierowej wybrane domy obejmują sprzęt AGD i pakiet mebli.
Doskonała łączność i lokalne atrakcje
Dzięki strategicznej lokalizacji w Rojales, Alicante, osiedle to oferuje doskonałą infrastrukturę i łączność:
Lotnisko Alicante-Elche (ALC): 38 km (35 minut jazdy samochodem).
Lotnisko Murcja-Corvera (RMU): 65 km (50 minut jazdy samochodem).
Bliskość głównych dróg, takich jak AP-7 i N-332, zapewnia łatwy dostęp do pobliskich miast i atrakcji.
Lokalne centra handlowe, restauracje i codzienne udogodnienia znajdują się w odległości spaceru.
Śródziemnomorski styl życia
Dzięki doskonałemu połączeniu nowoczesnego stylu życia, naturalnego piękna i niezrównanej wygody, ten kompleks mieszkaniowy w Lo Marabú jest idealnym wyborem dla osób poszukujących wysokiej jakości stylu życia. Nie przegap szansy na zainwestowanie w swój wymarzony dom w sercu Morza Śródziemnego.
Skontaktuj się z nami już dziś, aby umówić się na oglądanie lub dowiedzieć się więcej o tej wyjątkowej inwestycji!