Nowoczesne, nowo wybudowane wille z opcjonalnym prywatnym basenem w Pilar de la Horadada
Ekskluzywna inwestycja obejmująca 4 nowoczesne domy
Ta limitowana kolekcja czterech nowo wybudowanych willi bliźniaczych i szeregowych położona jest w spokojnej okolicy Pilar de la Horadada, zaledwie kilka minut od centrum miasta i 3 km od śródziemnomorskich plaż. Zaprojektowane z myślą o komforcie, stylu i energooszczędności, każdy dom oferuje przestronne wnętrza z możliwością dodania prywatnego basenu i parkingu na działce.
Elegancki design i życie na świeżym powietrzu
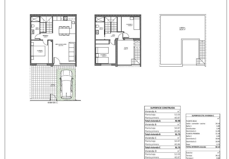
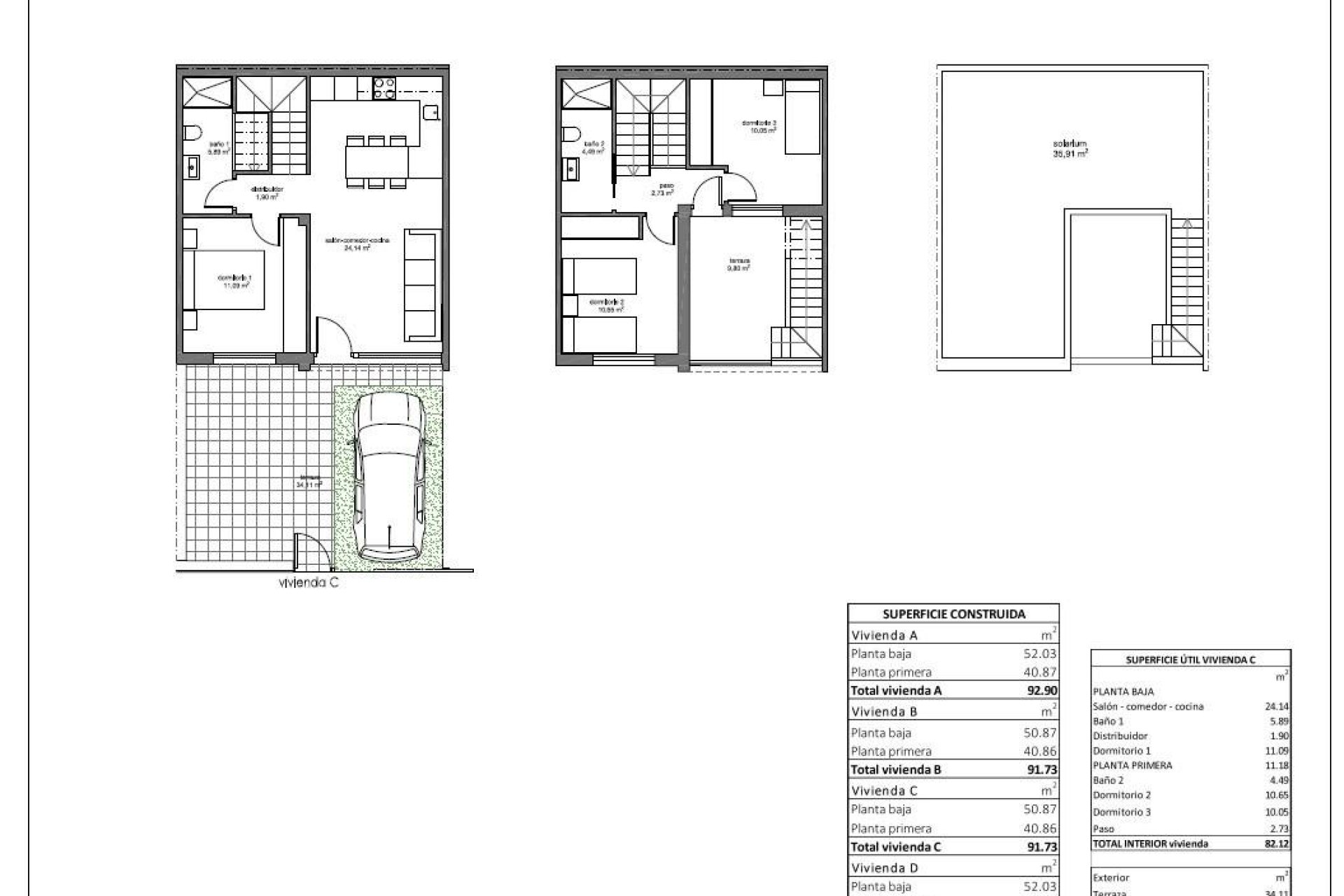
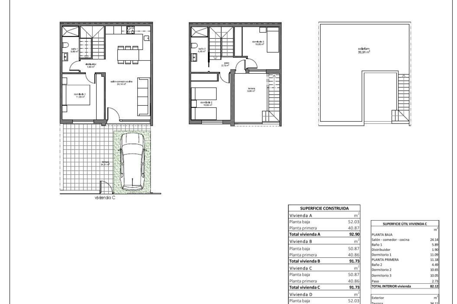
Każda willa posiada trzy sypialnie i dwie w pełni wyposażone łazienki, rozmieszczone w przemyślany sposób w jasnym i otwartym wnętrzu. Prywatny ogród i obszerny taras na dachu z przygotowaniem pod kuchnię na świeżym powietrzu stanowią idealne miejsce do cieszenia się całorocznym słońcem Costa Blanca. Opcjonalny prywatny basen zapewnia dodatkowy komfort podczas relaksu lub rozrywki.
Wysokiej jakości wyposażenie i wykończenie
Domy są wyposażone w nowoczesne materiały i wykończenia, które zapewniają trwałą jakość i wygodę:
Wzmocnione drzwi wejściowe dla dodatkowego bezpieczeństwa
Zewnętrzna stolarka z PVC z przegrodą termiczną dla lepszej izolacji
W pełni wyposażone łazienki z kabinami prysznicowymi
Ogrzewanie podłogowe w łazienkach dla dodatkowego komfortu
System aerotermiczny do ogrzewania wody użytkowej
Wstępnie zainstalowana klimatyzacja kanałowa w całym domu
Mieszkanie w Pilar de la Horadada: mieście pełnym uroku
Pilar de la Horadada to tradycyjne hiszpańskie miasteczko znane z przyjaznej atmosfery i doskonałej infrastruktury. Miasto oferuje wszystko, czego potrzebujesz do codziennego życia, w tym supermarkety, restauracje, butiki i urocze place. Krótki spacer dzieli Cię od tętniącego życiem centrum, gdzie możesz delektować się lokalnymi tapas, wydarzeniami kulturalnymi i cotygodniowymi targami.
Blisko plaż, pól golfowych i usług
Plaże Torre de la Horadada i Mil Palmeras: 3 km (5 minut)
Centrum handlowe La Zenia Boulevard: 15 km (15 minut)
Lo Romero Golf: 7 km (10 minut)
Lotnisko Corvera Murcia: 40 km (40 minut)
Międzynarodowe lotnisko w Alicante: 55 km (55 minut)
Zabezpiecz swoją nieruchomość na Costa Blanca już teraz
Niezależnie od tego, czy szukasz domu na stałe, miejsca na wakacje, czy nieruchomości inwestycyjnej, te nowe domy w Pilar de la Horadada oferują doskonałą lokalizację, nowoczesne udogodnienia i śródziemnomorski styl życia. Skontaktuj się z nami już dziś, aby uzyskać więcej informacji lub umówić się na wizytę.